專案概覽:
| 項目 | 內容說明 |
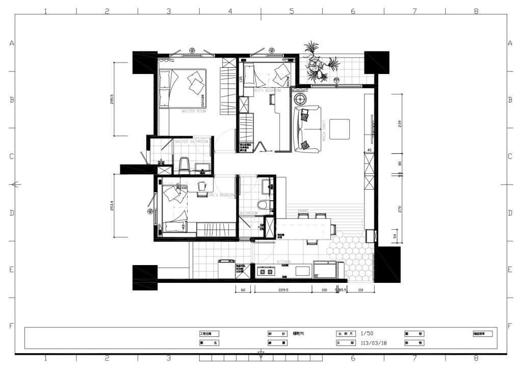
| 空間性質 | 住宅空間 | 三房2廳2衛2 前後陽台 |
| 空間坪數 | 室內23坪 |
| 主要建材 | 日本矽酸鈣板、超耐磨地板、KD木皮、客製化系統櫃 |
| 設計風格 | 現代簡約 |
設計重點與解決方案
- 動線規劃:打破封閉廚房格局,拆除廚房隔間。拆除靠客廳臥室隔間,改用半封牆加玻璃隔間將視覺空間放大。
- 採光優化:因拆除次臥室、廚房隔間,引導東南向陽台的落地窗的陽光整日照向室內。
- 收納系統:整合 KIRAKU 系統櫃,玄關配置電信櫃、4人鞋櫃,餐廳收納櫃,主臥室衣櫃,次臥室衣櫃、書櫃等。
- 天花板設計:利用弧形天花板設計解決大樓樑柱系統貫穿室內空間的突兀感。
這是一個住著兩大兩小、還有三隻貓的家庭。他們的新家位在高樓層,室內坪數為 23 坪,三房兩廳兩衛,擁有難得的前後雙陽台與開闊的景觀視野。屋主希望,這個空間不只是住得下,更能乘載一家四口的生活軌跡與情感流動。
琦樂 接手本案的初衷,是從理解生活開始。我們相信設計不只是漂亮的形式,而是對於「如何生活」的具體回應。從格局調整、收納策略、動線配置,到貓咪的棲息處所、孩子的未來成長考量,一切設計都源自於對「家」的深層共感。
中島台:家的節奏中心
空間規劃的重點,是打破傳統廚房的封閉格局,打造一個開放式廚房,並以中島台為核心。這張中島不只是料理的平台,更是全家人互動的焦點:全家一起備餐,一起寫功課、畫圖,偶爾也會一起做甜點及餅乾——日常裡許多美好的甜蜜點,都在這裡發生。
設計上,中島台延伸出簡潔的吧檯座位,結合儲物機能、電器櫃機能,並結合餐桌功能。這樣的安排不只是為了美觀,更是回應這個家庭真正的使用習慣,讓家的節奏從這裡開始延展。

面對日照的智慧選擇:落地窗與全熱交換器
除了室內遮陽,我們在客變階段就針對落地窗的氣密與隔熱性能進行評估,結合全熱交換器,解決高樓層西曬與通風的兩難。
本案位處高樓,擁有一整面朝南的落地窗。這讓整個公共空間擁有極佳的採光與視野,同時也帶來強烈的日照與溫度負擔。為了兼顧舒適與節能,我們搭配遮陽設計、雙層窗簾系統,並導入全熱交換器。
全熱交換系統能穩定室內外空氣流通,在保留室內溫濕度的同時,帶來清新空氣。這樣的安排也對有養貓家庭格外重要——避免空氣悶熱、不流通造成寵物與人的不適,是對生活品質細緻的照顧。
同時,掃地機器人也被納入整體規劃,所有家具高度、動線留白都預先安排,真正做到「機能與美感並存」的智慧住宅。
弧形天花與玻璃隔間:柔化線條,打開空間
設計中,我們選擇以弧形線條收邊天花板,取代傳統直角轉折。這樣的設計不僅能柔化空間感受,也讓天花板與牆面銜接更自然,增添一份柔和與溫潤。
男孩房則採用玻璃隔間設計,搭配遮蔽窗簾,能視需求調整空間的開放程度。平時打開時,視覺延伸整個公共空間,讓 23 坪的室內空間感更開闊;需要安靜或隱私時,也能關起來成為完整的房間。
這樣的設計處理,不僅是對坪效的極致運用,更是一種生活彈性的體現。

小孩房:在有限中預見未來
這個家有兩個孩子,目前都還在小學階段。我們知道孩子會長大,所以設計不只是應付當下,更要為未來留下彈性。
女孩房空間較小,我們將床架設計靠窗,並於床下規劃抽屜收納,節省空間也避免堆積雜物。同時,桌面採成人尺寸規格,搭配成長型椅子,讓孩子從小學用到高中無需更換——一張好的桌子,是陪伴孩子成長的重要角色。
即便空間不大,我們也努力讓每一處都有自己的意義與餘裕,不讓擁擠成為家的記憶。


主臥與收納:視線的留白,生活的有序
主臥空間以柔和中性色調為主,搭配落地衣櫃。我們特別注重衣櫃內部的分類系統——每一門片後面都是井然有序的收納,拿取方便,也更容易維持整齊。
門片全開時,是一目了然的生活秩序;關起來時,則是視覺的留白與沈靜,讓臥室回歸為休息放鬆的場所。
陽台造景與貓咪動線:日常的小確幸
前陽台設置簡易盆栽造景,成為每天最療癒的角落。這些綠意不只是裝飾,也成為小孩與貓咪最常停留的地方。高樓層的安全也在設計中一併考量,讓這些可愛的生命在其中自由安全地活動。
後陽台則規劃為完整的家事工作區,洗衣、晾曬與儲藏功能分區明確,不干擾主生活區的清爽視覺。
這不是複製,而是共築——琦樂空間設計 的角色
每一個家的樣子都不同,因此我們不提供制式的解法,而是一步一步與使用者共築出專屬的生活版本。
在這個作品中,我們不是單純的設計者,而是生活引導的共伴者。我們陪伴這個家庭從需求釐清、功能取捨到美感討論,一起打造出屬於他們自己的節奏空間。
你也正在為家尋找一種更適合的樣子嗎?
歡迎聯繫 琦樂空間設計,讓我們一起規劃出一個承載你生活節奏的所在。

[延伸閱讀]
從思維改變開始:為家的收納打下穩固基礎
為什麼我們鍾愛全開放式廚房?【中島設計・廚房規劃】
系統櫃是什麼?系統櫃的特色、優點與適合對象
